Todo Deportes
Comienza la construcción de complejo deportivo
Comienza la construcción de complejo deportivo
Comienza la construcción de complejo deportivo
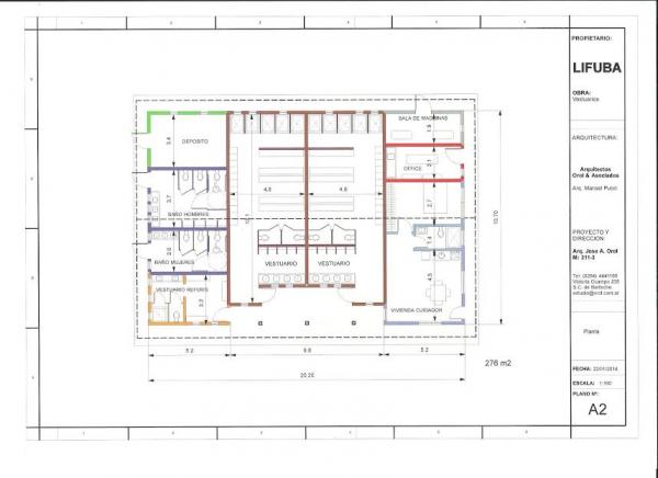
El presidente de la Liga de Fútbol Bariloche, Daniel Pardo, anunció el inminente comienzo de las obras para la cancha del fútbol infantil en el predio que esta entidad posee en el Barrio Mutisias, destinado específicamente a los chicos en proceso de formación. “Solo resta la aprobación de los planos pero ya contamos con parte de los recursos que ha generado la Liga para parte de este proyecto”, expresó orgulloso Pardo.
Pardo recordó que es “un viejo sueño de muchos años” ya que se trata de la construcción de un predio adecuado dónde los chicos puedan jugar en canchas de césped y con las instalaciones adecuadas. “Todos sabemos de la falta de infraestructura en nuestra ciudad. Es una deuda pendiente. En este proyecto, está prevista la construcción de un complejo deportivo con una cancha de césped natural, dos canchas de césped sintético y la construcción de una superficie de 276m2 que comprende vestuarios, baños y vivienda del cuidador”, dijo Pardo.
Hoy, la Liga de Fútbol Bariloche cuenta con 20 clubes afiliados al Departamento Infanto Juvenil con todas sus categorías. Y cada fin de semana, se estima que unos dos mil niños y adolescentes de Bariloche practican fútbol.
En este sentido, el presidente del Departamento Infanto Juvenil, José luis Guerrero, expresó: “Este es un emprendimiento para la ciudad. Para mejorar la calidad de los espacios en donde nuestros chicos se divierten. En marzo vamos a organizar un nuevo bingo con el único objetivo de reunir fondos para comenzar la primera etapa del proyecto”.
Finalmente, Pardo resaltó: “Si bien contamos también con un importante compromiso por parte del gobierno provincial para acompañar este proyecto, la Liga de Fútbol se comprometió junto con todos los clubes para cumplir con este hermoso sueño. Una demostración de que se puede lograr la unidad en el fútbol local”.
Todo Deportes
Bariloche arranca el año a puro deporte
La competencia se realizará este domingo 4, en el circuito de la Costanera, desde las 15 horas, con las categorías infant ...
Leer más
El Rally Regional vuelve a rugir en Bariloche: más de 50 pilotos competirán en la ciudad
La ciudad volverá a vibrar con una de las fechas más esperadas del automovilismo patagónico. El “Rally Coron ...
Leer más
Juegos Nacionales Evita Adaptados: barilochenses volvieron con medallas y grandes experiencias
Integrantes del programa Actividad Deportiva Adaptada Municipal - ADAM se lucieron en los Juegos Evita para personas con discapacidad r ...
Leer más
Bariloche será sede de una de las carreras de trail más importantes del mundo
La ciudad recibirá una de las fechas del World Trail Majors, un trail running que recorre escenarios mundiales como el Monte Fu ...
Leer más
Deporte y diversión: una mañana a puro hockey con categorías formativas
La actividad, impulsada por la Subsecretaría de Deportes municipal y la Escuela Municipal de Hockey de la Escuela 123, reuni&oac ...
Leer más
Se puso en marcha una verdadera fiesta del deporte juvenil
Con la participación de más de 1800 jóvenes, comenzó la etapa local de los Juegos Rionegrinos en el Gimnasi ...
Leer más
Descubre cuantas Copas America tiene Argentina y cómo las ganó
Argentina es una de las selecciones más exitosas. Su fanatismo llega hasta casino sitios como
Leer más
¡Fuera malos olores! Guía para eliminar el mal olor de tus zapatillas
En la actualidad, las zapatillas son un elemento básico de nuestro vestuario, pero muchas veces mantenerlas frescas y libres de ...
Leer más
Mejora tu juego con los increíbles bonos de 1Win Casino
En el mundo de los casinos en línea, los bonos y promociones son esenciales para atraer y mantener a los jugadores.
El c ...
Leer más
5 motivos por los que apostar en la liga de México
Aunque el fútbol mexicano no se encuentra en uno de sus mejores momentos actualmente, la
Liga MX sigue siendo una de las ...
Leer más
12 Goles Legendarios de Diego Maradona
Mira este video de los legendarios e inolvidables goles de Diego Maradona, uno de los mejores jugadores de todos los tiempos en el f&ua ...
Leer más
El barilochense Juan Cruz Iraldi presente en el triunfo ante Brasil
GIRA INTERNACIONAL DE VÓLEY U19
|
26/06/2024
El barilochense Juan Cruz Iraldi presente en el triunfo ante B ...
Leer más
El hockey local abrió el 2024 a puro gol
Con una fecha de atractivos encuentros, comenzó este fin de semana el Torneo Apertura 2024, de la Asociación de Hockey Ba ...
Leer más
Documental Yoga, Capoeira, Malabares y Skate en la Educación Física: Enseñanza en la Escuela
El mismo está basado en el Proyecto de Investigación Prácticas corporales culturales desde una múltiple per ...
Leer más
AJEDREZ: GRAN TRIUNFO DE ESTEBAN TAPIOLA EN EL GRAND PRIX DEL MES
El sábado 9 se disputó el Grand Prix del mes de setiembre en instalaciones del Club Nahuel Huapi.
La convocatoria ...
Leer más
Bariloche será el epicentro mundial del motocross: la Patagonia abrirá el campeonato FIM 2026
La FIM (Federación Internacional de Motociclismo) e Infront Moto Racing confirmaron oficialmente que Bariloche será la se ...
Leer más
AJEDREZ BARILOCHENSES PARTICIPARON DE UN TORNEO INTERNACIONAL EN PUERTO MONTT, CHILE
Durante los días 30 y 31 de agosto se disputó en Puerto Montt, Chile, un Torneo internacional IRT sub2400. El mi ...
Leer más
El Nacional Sub14 tiene a sus finalistas y se viene el cierre
El torneo Nacional Sub14 de voley completó otra gran doble jornada y se viene el último día, un sábado con ...
Leer más
Doble podio barilochense en el Rally Neuquino
La tercera fecha del certamen neuquino se disputó durante el fin de semana con una nueva edición del Rally de Añel ...
Leer más
Cómo apostar en el tenis: Guía para principiantes sobre las apuestas en los partidos
El tenis es uno de los deportes más emocionantes para apostar, ya que ofrece acción durante todo el año, emocionan ...
Leer más
Cerca de setecientos corredores participaron de la 4 Refugios 2025 | Diario El Cordillerano
Este fin de semana, se llevó a cabo la exigente carrera de montaña que une los refugios más emblemáticos de ...
Leer más
Las apuestas más interesantes en el fútbol argentino
El fútbol nacional es muy interesante. Tanto que se considera una de las mejores ligas del conteniente y de él nacen juga ...
Leer más
El Origen del Fútbol: ¿Dónde se Inventó este Deporte?
¿Alguna vez te has preguntado dónde se originó el fútbol? Conoce esta apasionante historia acompa&n ...
Leer más
Todo lo que necesitás saber sobre el Mundial de Clubes 2025
Con un nuevo formato que consta de 32 equipo que representarán a las seis confederaciones
que tiene la FIFA en todo el pl ...
Leer más
Emmanuel Adebayor ha protagonizado la temporada más productiva de su carrera
Emmanuel Adebayor es una leyenda y la principal estrella de la historia de la selección nacional de Togo. Por cierto,
Leer más
AJEDREZ GRAN TRIUNFO DE WALTER SEGOVIA EN EL GRAND PRIX DEL MES
El sábado 18 se disputó el Grand Prix del mes de noviembre en instalaciones del Club Nahuel Huapi.
El Torneo cont ...
Leer más
Torneos de Grand Slam: coronas mundiales de tenis
Grand Slam de tenis: una mirada a los estándares de oro
El tenis es un juego de pasión, velocidad y técnica ...
Leer más
Un Entrenador Local de Bariloche Brillará en el Campeonato Sudamericano de Trampolín
Permíteme presentarte a Federico Quintana, un entregado entrenador en Bariloche que está dejando su huella en el mundo de ...
Leer más
Agenda Cultural
Guía Gourmet
Turismo




























Inicio