Universidad nacional el Comahue
Construcción de nuevas aulas para la UNCo Bariloche
Construcción de nuevas aulas para la UNCo Bariloche
Con mucha expectativa se llamó a licitación para la construcción de Módulo de Aulas en la UNCo Bariloche
Hasta el 12 de diciembre, día en que serán abiertos los sobres de licitación, las empresas interesadas podrán entregar sus ofertas para la obra de un módulo de aulas para la UNCo Bariloche.
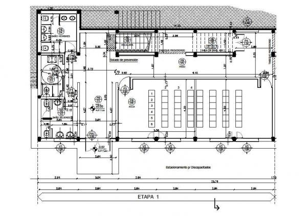
El proyecto de dos plantas tiene un presupuesto de más de 7,7 millones de pesos y estará ubicado junto al instituto Inibioma, en la zona del estacionamiento de la calle Quintral. Se estipula un plazo de obra de 300 días, por lo que se espera la terminación de la obra para fines del 2017.
La Comisión evaluadora de las propuestas, que se reunirá el 19 de diciembre, tendrá la participación del Arquitecto Manuel Martini, docente de la UNCo Bariloche, quien integró la Comisión Asesora de Infraestructura donde se evaluó el proyecto desde el 2010.
El Módulo consiste en un edificio compacto, resuelto en dos plantas, con una morfología similar al edificio contiguo. Consta de cuatro aulas para clases teóricas y módulos de servicios enlazados por halles y pasos que se comunican entre sí por circulaciones verticales, escaleras y un ascensor. Cada planta tiene su propio hall de acceso, con amplias carpinterías vidriadas para el ingreso de luz y comunicación visual con el entorno.
En este nivel de planta baja se dispone de dos aulas de 50 m2 cada una y un Módulo de baños, compuesto por baño de mujeres, baño de hombres y baño accesible. Una de las aulas tiene la posibilidad de sub-dividirse en dos aulas más pequeñas mediante un tabique móvil.
En la Planta Alta se disponen dos aulas que repiten el esquema de amplitud y disponibilidad de las de Planta Baja y un módulo de baños similar.
Para más información se puede ingresar a la página de la Secretaría de Hacienda de la UNCo:
http://www.uncoma.edu.ar/hacienda/compras/archivos/Licitacion-Publica-04_2016-CRUB/index.html
Universidad nacional el Comahue
Dirección: quintral 1250Tel: +54 2944 423374 -428505 - 426368
Pañuelos por la Identidad
La Biblioteca del CRUB (declarada Casa de la Memoria), invita a la actividad Pañuelos por la Identidad. La misma se propone real ...
Leer más
Encuentro Huertero Zonal en la UNCo Bariloche
El domingo 24 de noviembre de 11 a 18 hs se realizará el Encuentro Huertero Zonal en la UNCo Bariloche.
Habrá:
Leer más
Conversatorio en el marco del Día Nacional por el Derecho a la Identidad
El día 22 de octubre a las 17hs en el Aula 1 se llevará a cabo un conversatorio a cargo de Juan Carlos Jalil en el que se ...
Leer más
El 7 de abril se correrá la XVIII edición de la Carrera de Miguel en Bariloche
La Comisión Organizadora invita a toda la comunidad a participar de la “XVIII Edición de la Carrera de Miguel" ...
Leer más
25 egresados y egresadas recibirán su título este miércoles en un nuevo Acto Académico de Colación UNCo Bariloche
El próximo miércoles 20 de diciembre a las 10:30 horas, se realizará el CLVII (157) Acto Académico de Colac ...
Leer más
La Biblioteca de la UNCo Bariloche será Casa de la Memoria por la Verdad y la Justicia
El próximo lunes 11 de diciembre, en el marco de las actividades por los 40 Años de Democracia, se nombrará a la B ...
Leer más
La revista Desde la Patagonia, Difundiendo Saberes cumplió 20 años
Este sábado, la revista Desde la Patagonia, Difundiendo Saberes realizó la celebración por sus 20 años. La ...
Leer más
Llega la 2° Edición del ciclo artístico político Sentipensando en Democracia
El próximo martes 14 de noviembre, a las 14 horas en el hall del CRUB (Quintral 1250) se realizará la 2° edició ...
Leer más
Se presentará el documental Al Borde en el Aula Magna de la UNCo Bariloche
Este miércoles 8 de noviembre a las 20 horas se proyectará el documental Al Borde en el Aula Magna "Juan Marcos Herm ...
Leer más
Selección docente para la Delegación departamental de Didáctica - Noviembre 2023
El Centro Regional Universitario Bariloche - Universidad Nacional del Comahue llama a inscripción para cubrir los siguientes car ...
Leer más
En un emotivo acto de colación, 13 graduados y graduados recibieron su título en la UNCo Bariloche
Este viernes (6 de octubre) se realizó un nuevo acto de colación con la participación de 13 graduados y graduadas ...
Leer más
La Muestra de Carreras de Bariloche se reprogramó para el viernes 6 de octubre
Estimada Comunidad CRUB:
La Muestra de Carreras de Educación Superior Pública de Bariloche fue reprogramada para ...
Leer más
Se presentó el documental De la resistencia a la existencia en la UNCo Bariloche
Con la presencia de Malena Winer, presidenta de la cooperativa de Tiempo Argentino, se presentó el documental “De la resis ...
Leer más
Este viernes se realizará la 6ta Muestra de Carreras de Educación Superior Pública
El lanzamiento se realizó oficialmente con una conferencia de prensa con referentes de las seis instituciones de Educació ...
Leer más
El Campeonato Sudamericano de Gimnasia de Trampolín también se realiza en el Gimnasio Polideportivo de la UNCo Bariloche
Este miércoles comenzó el Campeonato Sudamericano de Gimnasia de Trampolín en el Gimnasio Polideportivo del Centro ...
Leer más
El docente de la UNCo Marcelo Aizen recibió el Premio Consagración por la Academia Nacional de Ciencias Exactas, Físicas y Naturales
La emotiva ceremonia fue encabezada por la presidenta de la Academia Nacional de Ciencias Exactas, Físicas y Naturales (ANCEFN) ...
Leer más
El CRUB ganó el premio mayor de los Juegos Interfacultades de la Universidad Nacional del Comahue
La representación del Centro Regional Universitario Bariloche (CRUB) se quedó este domingo con la Copa Comahue de los Jue ...
Leer más
El miércoles 2 de octubre se realizará una nueva Marcha Federal Universitaria en Bariloche
Este viernes 27 de septiembre, representantes gremiales, estudiantiles y autoridades de las instituciones de educación superior ...
Leer más
Comienzan los Talleres de Ingreso de la UNCo Bariloche
Este jueves 1° de febrero comienzan los Talleres de Ingreso 2024 de la UNCo Bariloche. Los mismos están orientados a los y l ...
Leer más
Gabriela Cusminsky recibió el Premio al Mérito Paleontológico
La Asociación Paleontológica Argentina otorga el Premio al Mérito Paleontológico para reconocer a los y las ...
Leer más
Profesor de la Universidad Nacional del Comahue e investigador del CONICET en el INIBIOMA ganador del Premio Houssay Trayectoria 2023
El Dr. Marcelo Aizen será reconocido por el Premio Houssay Trayectoria 2023 del Ministerio de Ciencia, Tecnología e Innov ...
Leer más
Comenzó el periodo de inscripción para el llamado a Concurso para cubrir un cargo del escalafón No Docente Técnico/Profesional para el Laboratorio de Prácticas Simuladas de Enfermería
La Universidad Nacional del Comahue (UNCo) llama a Concurso de Ingreso, Abierto de Antecedentes y Oposición para cubrir un (1) ...
Leer más
La UNCo convoca a participar del Observatorio Electoral de cara al balotaje
La Universidad Nacional del Comahue, a través de su observatorio electoral, convoca a personas mayores de 18 años a reali ...
Leer más
Comenzó la pre-inscripción 2024 en la UNCo
La Universidad ofrece 35 carreras de pregrado y 82 de grado. En posgrado hay 22 especializaciones, 20 maestrías y 8 doctorados, ...
Leer más
La UNCo Bariloche fue sede de la XIII Jornada Nacional para un Envejecimiento Saludable
La XIII Jornada Nacional para un Envejecimiento Saludable, la I Jornada Patagónica sobre Envejecimiento Activo y Saludable y el ...
Leer más
El viernes se realizará un nuevo Acto Académico de Colación de la UNCo Bariloche
El viernes 6 de octubre a las 10:30 horas, en el Aula Magna Juan Marcos Herman de la UNCo Bariloche (Quintral 1250) se realizará ...
Leer más
Se presentó el documental De la resistencia a la existencia en la UNCo Bariloche
Con la presencia de Malena Winer, presidenta de la cooperativa de Tiempo Argentino, se presentó el documental “De la resis ...
Leer más
Se suspende la Muestra de Carreras de la Educación Pública 2023
Estimados/as:
Debido a la alerta meteorológica vigente para la ciudad y la suspensión de clases en zona andina, s ...
Leer más
Conferencia de prensa: Muestra de Carreras Bariloche | Lunes 10:30hs
Estimados/as colegas:
Invitamos a la prensa al lanzamiento de la Muestra de Carreras de Educación Superior Públic ...
Leer más
Recordatorio: El 7 y 8 de septiembre se realizarán las II° Jornadas de Seminarios del Doctorado en Biología 2023
La Comisión de Doctorado en Biología invita a toda la comunidad universitaria a participar de los seminarios del Doctorad ...
Leer más
Agenda Cultural
Guía Gourmet
Turismo
























Inicio